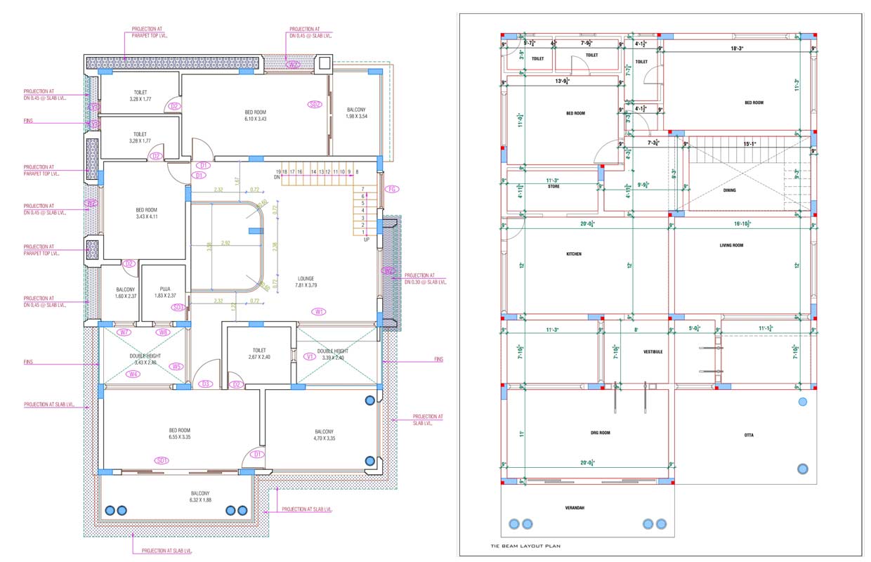
The heart of a house or a villa or any building is its layout and structure design.
We provide great designs that are practically advanced and easy to understand.